Aus­bau
Ate­lier

Land­strasse, Rieden

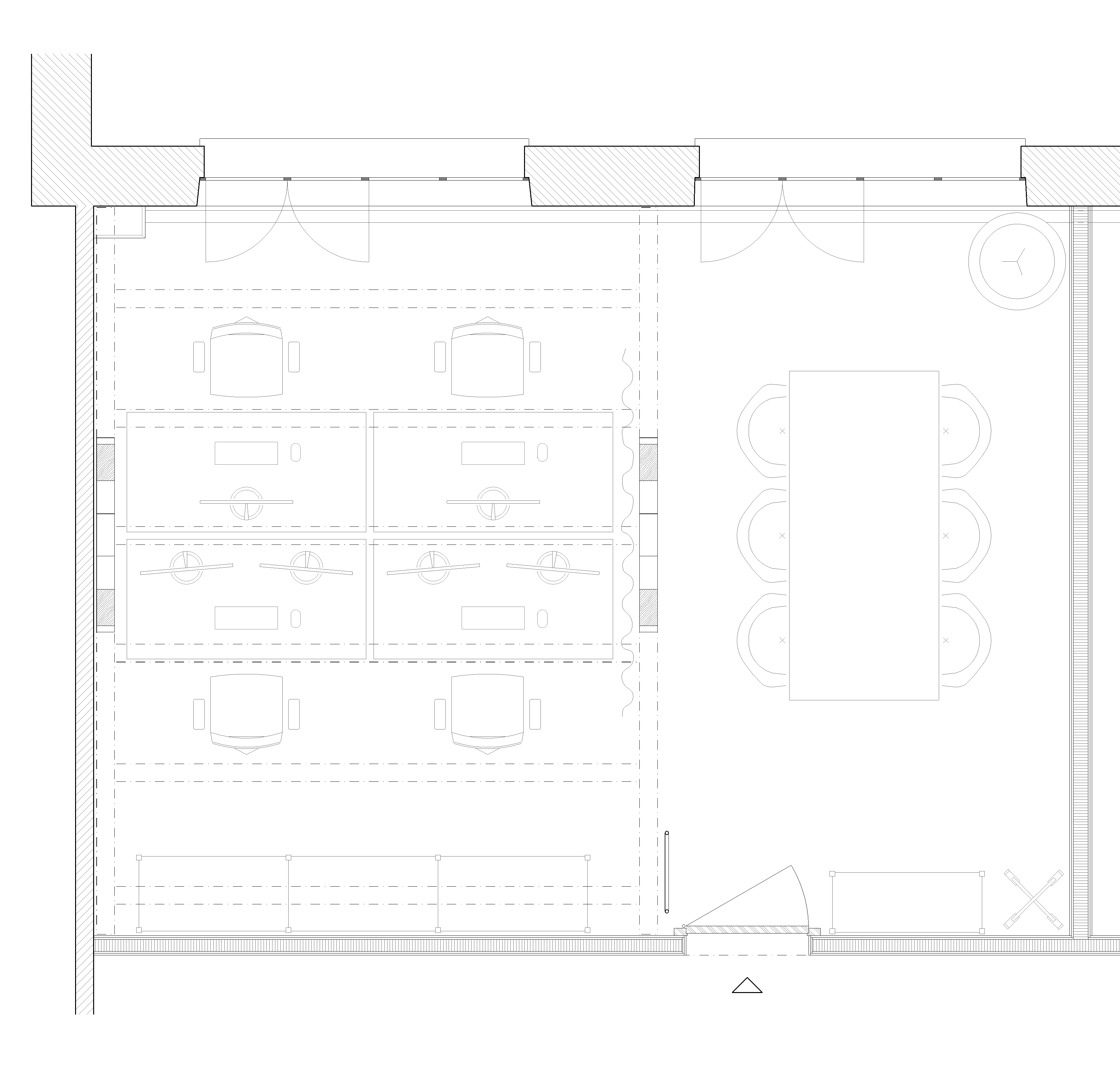
Die Arbeits­stätte der Wir Archi­tek­ten befin­det sich in der ehe­ma­li­gen Arma­tu­ren­fa­brik der Oeder­lin AG, Arbeits- und Kul­tur­be­geg­nung­stätte zugleich. Ein­ge­bet­tet in der Fluss­land­schaft der Lim­mat, in den Gemein­den Ennet­ba­den und Rie­den bei Baden.

Die Räum­lich­kei­ten lie­gen  an der Süd­seite des ehe­ma­li­gen Gebäu­de­trakts der Polie­re­rei, mit Blick auf die Lim­mat und das benach­barte Bäder­quar­tier. Auf­grund des Platz­be­darfs wurde die gross­zü­gige Raum­höhe durch ein zwei­tes Niveau kom­pen­siert, wel­ches über die Hälfte der Grund­flä­che ange­ord­net wurde. Die Geschoss­ebene wurde als Holz­bau kon­zi­piert, wel­cher unab­hän­gig der gebau­ten Umge­bung funk­tio­nie­ren kann. Die V‑Stützen wir­ken im Raum skulp­tu­ral und glie­dern die­sen in ver­schie­dene Arbeitsbereiche

Nut­zung: Gewerbe
Pro­jekt­stand: aus­ge­führt
Jahr: 2017
Auf­trag­ge­bende: Wir Archi­tek­ten GmbH

Pha­sen:
3 Pro­jek­tie­rung
5 Aus­füh­rung

Die Arbeits­stätte der Wir Archi­tek­ten befin­det sich in der ehe­ma­li­gen Arma­tu­ren­fa­brik der Oeder­lin AG, Arbeits- und Kul­tur­be­geg­nung­stätte zugleich. Ein­ge­bet­tet in der Fluss­land­schaft der Lim­mat, in den Gemein­den Ennet­ba­den und Rie­den bei Baden.

Die Räum­lich­kei­ten lie­gen  an der Süd­seite des ehe­ma­li­gen Gebäu­de­trakts der Polie­re­rei, mit Blick auf die Lim­mat und das benach­barte Bäder­quar­tier. Auf­grund des Platz­be­darfs wurde die gross­zü­gige Raum­höhe durch ein zwei­tes Niveau kom­pen­siert, wel­ches über die Hälfte der Grund­flä­che ange­ord­net wurde. Die Geschoss­ebene wurde als Holz­bau kon­zi­piert, wel­cher unab­hän­gig der gebau­ten Umge­bung funk­tio­nie­ren kann. Die V‑Stützen wir­ken im Raum skulp­tu­ral und glie­dern die­sen in ver­schie­dene Arbeitsbereiche.

Zim­mer­mann: Holz­bau Bühl­mann AG, Mön­thal
Arbeits­plätze: Schrei­ne­rei Wettach, Döttingen